Prawidłowo wykonane zbrojenie stopy fundamentowej to absolutna podstawa stabilności i długowieczności każdego budynku. To właśnie ten stalowy szkielet, zatopiony w betonie, odpowiada za przenoszenie ogromnych obciążeń z całej konstrukcji na grunt, zabezpieczając ją przed pęknięciami, osiadaniem czy nawet katastrofą budowlaną. W tym artykule, jako Radosław Kowalski, podzielę się z Państwem kompleksowymi i praktycznymi wskazówkami, które pomogą zarówno inwestorom, jak i wykonawcom zrozumieć i prawidłowo zrealizować ten kluczowy etap budowy.
Prawidłowe zbrojenie stopy fundamentowej to fundament stabilności domu kluczowe zasady wykonania.
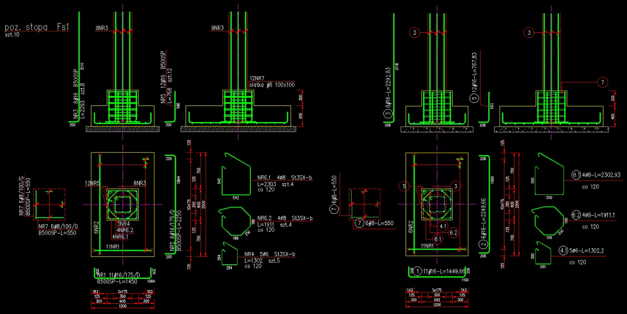
- Projekt zbrojenia jest zawsze indywidualny i opracowywany przez uprawnionego konstruktora.
- Do zbrojenia stosuje się stal żebrowaną klasy A-IIIN (pręty główne fi 12-16 mm) oraz gładką klasy A-0/A-I (strzemiona fi 6-8 mm).
- Konieczne jest zachowanie minimum 5 cm otuliny betonowej, chroniącej stal przed korozją.
- Pręty zbrojeniowe należy stabilnie łączyć drutem wiązałkowym w każdym skrzyżowaniu.
- Pręty startowe ("wąsy") pod słupy lub ściany muszą być odpowiednio zakotwione w stopie i mieć właściwą długość zakładu.
- Betonowanie powinno odbywać się w sposób ciągły, dokładnie otulając całe zbrojenie.
Zbrojenie stopy fundamentowej: dlaczego to podstawa bezpieczeństwa Twojego domu?
Stopa fundamentowa to jeden z najważniejszych elementów konstrukcyjnych każdego budynku. To ona stanowi bezpośrednie połączenie konstrukcji z gruntem, odpowiadając za równomierne rozłożenie i przeniesienie wszystkich obciążeń od ciężaru własnego budynku, przez obciążenia użytkowe, aż po te wynikające z wiatru czy śniegu. Bez odpowiedniego zbrojenia, sama masa betonowa nie byłaby w stanie skutecznie przeciwstawić się siłom rozciągającym i ścinającym, które nieustannie działają na fundament. Prawidłowo zaprojektowane i wykonane zbrojenie jest więc absolutnie niezbędne do zapewnienia stabilności, trwałości i bezpieczeństwa całej konstrukcji na dziesiątki lat. Zawsze podkreślam, że projekt zbrojenia jest kwestią indywidualną, wynikającą z precyzyjnych obliczeń statycznych, wykonywanych przez uprawnionego konstruktora.
Czym grozi zlekceważenie zasad zbrojenia? Potencjalne awarie i koszty
Zlekceważenie zasad prawidłowego wykonania zbrojenia stopy fundamentowej to proszenie się o poważne problemy, które mogą pojawić się już w trakcie budowy lub po kilku latach eksploatacji. Niewłaściwe zbrojenie drastycznie obniża nośność fundamentu i jego odporność na odkształcenia. W mojej praktyce widziałem już wiele przypadków, gdzie błędy na tym etapie prowadziły do:
- Pęknięć fundamentów i ścian nośnych: Najczęściej są to pęknięcia ukośne, świadczące o niewystarczającej odporności na siły ścinające lub rozciągające.
- Nierównomiernego osiadania budynku: Jeśli zbrojenie nie rozkłada obciążeń równomiernie, poszczególne części fundamentu mogą osiadać w różnym tempie, prowadząc do deformacji całej konstrukcji.
- Korozji zbrojenia: Brak odpowiedniej otuliny betonowej naraża stal na bezpośredni kontakt z wilgocią i agresywnymi substancjami z gruntu, co prowadzi do jej korozji, rozsadzania betonu i utraty nośności.
- Katastrof budowlanych: W skrajnych przypadkach, zwłaszcza przy dużych obciążeniach i rażących błędach, może dojść nawet do zawalenia się części lub całości konstrukcji.
Koszty napraw takich awarii są zazwyczaj horrendalnie wysokie, często przekraczające wartość pierwotnej inwestycji w fundamenty, a w wielu sytuacjach jedynym rozwiązaniem jest rozbiórka i ponowna budowa. Dlatego nie warto oszczędzać na projekcie i precyzyjnym wykonawstwie zbrojenia.

Anatomia zbrojenia stopy fundamentowej: z czego składa się stalowy szkielet?
Kiedy mówimy o zbrojeniu, często wyobrażamy sobie po prostu siatkę prętów. W rzeczywistości jest to znacznie bardziej złożony i precyzyjnie zaprojektowany "szkielet", składający się z różnych rodzajów prętów, z których każdy pełni określoną funkcję. Zrozumienie roli każdego elementu jest kluczowe dla prawidłowego montażu i zapewnienia oczekiwanej wytrzymałości konstrukcji.
Pręty nośne (główne): Jaką stal i średnicę wybrać zgodnie z projektem?
Pręty nośne, nazywane również prętami głównymi, to serce zbrojenia stopy fundamentowej. Ich zadaniem jest przejmowanie i przenoszenie sił rozciągających, które powstają w dolnej części stopy pod wpływem obciążeń z budynku. W Polsce, zgodnie z normami i dobrą praktyką inżynierską, do ich wykonania stosuje się stal żebrowaną klasy A-IIIN, taką jak B500SP czy B500S. Są to stale o wysokiej wytrzymałości i doskonałej przyczepności do betonu. Najczęściej spotykane średnice prętów głównych w stopach fundamentowych to fi 12 mm do fi 16 mm, choć w zależności od obciążeń i wymiarów stopy, konstruktor może przewidzieć inne średnice. Zawsze, ale to zawsze, należy ściśle trzymać się średnic i ilości prętów podanych w projekcie konstrukcyjnym. Odstępstwa są niedopuszczalne i mogą mieć katastrofalne skutki.
Strzemiona: Niedoceniany element, który gwarantuje stabilność
Strzemiona to często niedoceniany, ale absolutnie kluczowy element zbrojenia. Ich główną funkcją jest utrzymywanie prętów głównych w odpowiedniej, projektowanej pozycji, zarówno podczas montażu, jak i w trakcie betonowania. Zapobiegają one również wyboczeniu prętów głównych pod obciążeniem oraz przejmują siły ścinające, które działają w płaszczyźnie poziomej. Bez strzemion pręty główne mogłyby się przemieścić, a całe zbrojenie straciłoby swoją efektywność. Do wykonania strzemion zazwyczaj stosuje się stal gładką klasy A-0 lub A-I o mniejszych średnicach, najczęściej fi 6 mm lub fi 8 mm. Ich kształt i rozstaw są precyzyjnie określone w projekcie i muszą być bezwzględnie przestrzegane.
Pręty startowe ("wąsy"): Jak poprawnie przygotować połączenie ze słupem?
Pręty startowe, potocznie nazywane "wąsami", to nic innego jak przedłużenie zbrojenia słupów lub ścian, które mają opierać się na stopie fundamentowej. Ich zadaniem jest zapewnienie ciągłości konstrukcyjnej i prawidłowego zakotwienia tych elementów w fundamencie. Muszą być one odpowiednio długie, aby zapewnić tzw. długość zakładu, czyli obszar, na którym stal zbrojenia słupa lub ściany będzie skutecznie łączyć się z prętami startowymi wystającymi ze stopy. Długość i średnica tych prętów, a także sposób ich zakotwienia w stopie, są zawsze precyzyjnie określone w projekcie konstrukcyjnym i zależą od średnicy prętów, klasy stali oraz wytrzymałości betonu. Niewłaściwe wykonanie "wąsów" może osłabić połączenie słupa ze stopą, co jest poważnym błędem konstrukcyjnym.
Zbrojenie stopy fundamentowej krok po kroku: praktyczny przewodnik
Wykonanie zbrojenia stopy fundamentowej to proces, który wymaga precyzji, staranności i ścisłego przestrzegania projektu. Każdy etap, od interpretacji rysunków po stabilizację w wykopie, ma kluczowe znaczenie dla trwałości i bezpieczeństwa całego fundamentu. Postaram się przedstawić to w sposób przystępny, krok po kroku.
Krok 1: Interpretacja rysunku technicznego jak czytać projekt konstrukcyjny?
Zanim wbijemy pierwszy pręt, musimy dokładnie zrozumieć, co konstruktor zapisał w projekcie. Rysunek techniczny zbrojenia stopy fundamentowej to nasza mapa. Należy zwrócić uwagę na:
- Wymiary stopy: Długość, szerokość, wysokość.
- Średnice prętów: Oznaczenia fi (Ø) z liczbą (np. Ø12 oznacza pręt o średnicy 12 mm).
- Klasę stali: Zazwyczaj podaną w legendzie lub opisie (np. A-IIIN).
- Rozstaw prętów: Odległości między prętami głównymi i strzemionami.
- Kształt i wymiary strzemion: Jakie mają wymiary i jak są zagięte.
- Długości zakładów: Szczególnie ważne dla prętów startowych.
- Otulinę betonową: Minimalna odległość prętów od krawędzi betonu.
Dokładne zrozumienie tych symboli i wymiarów to podstawa. W razie wątpliwości zawsze konsultuję się z konstruktorem lepiej zapytać, niż popełnić błąd.
Krok 2: Przygotowanie i gięcie prętów niezbędne narzędzia i techniki
Po dokładnym odczytaniu projektu, przechodzimy do przygotowania stali. Pręty zbrojeniowe dostarczane są zazwyczaj w wiązkach, w postaci prostych odcinków. Musimy je przyciąć na odpowiednie długości i uformować zgodnie z rysunkiem.
- Cięcie prętów: Do tego celu używamy specjalnych nożyc do prętów zbrojeniowych (ręcznych lub elektrycznych) lub szlifierek kątowych z odpowiednią tarczą. Pamiętajmy o dokładności wymiarowej.
- Gięcie prętów: Strzemiona i ewentualne haki na końcach prętów głównych wymagają gięcia. Możemy to zrobić ręcznymi giętarkami do prętów lub, na większych budowach, giętarkami elektrycznymi. Kąty gięcia muszą być precyzyjne, a promienie gięcia odpowiednie, aby nie osłabić stali.
Pręty muszą być czyste, bez rdzy płatami, smarów czy farb, które mogłyby osłabić przyczepność betonu.
Krok 3: Montaż szkieletu zbrojeniowego zasady wiązania i łączenia prętów
Montaż szkieletu zbrojeniowego to kluczowy etap, który wymaga precyzji.
- Ułożenie prętów głównych dolnych: Najpierw układamy w odpowiednim rozstawie pręty główne w dolnej warstwie stopy. Zazwyczaj są to dwie warstwy krzyżujące się pod kątem prostym, tworzące siatkę.
- Montaż strzemion: Na prętach głównych dolnych, w wyznaczonym rozstawie, umieszczamy strzemiona. Ich zadaniem jest stworzenie "kosza" zbrojeniowego.
- Ułożenie prętów głównych górnych (jeśli przewidziane): W niektórych projektach, zwłaszcza przy większych stopach, przewidziane są również pręty główne w górnej części zbrojenia. Układamy je na strzemionach.
- Wiązanie prętów: Wszystkie miejsca skrzyżowania prętów głównych ze strzemionami, a także prętów głównych między sobą, należy stabilnie związać drutem wiązałkowym. Nie jest to spawanie, a jedynie mechaniczne połączenie, które ma zapewnić stabilność konstrukcji podczas transportu i betonowania. Wiązanie powinno być mocne, ale nie zaciśnięte do granic możliwości, aby nie uszkodzić stali.
- Montaż prętów startowych: Na koniec montujemy pręty startowe ("wąsy") pod słupy lub ściany, pamiętając o ich prawidłowym zakotwieniu w stopie i zachowaniu odpowiedniej długości zakładu.
Cały szkielet powinien być sztywny i stabilny, aby nie uległ deformacji podczas dalszych prac.
Krok 4: Zapewnienie kluczowej otuliny dlaczego 5 cm to minimum?
Otulina betonowa to warstwa betonu, która oddziela pręty zbrojeniowe od zewnętrznej powierzchni elementu konstrukcyjnego. Jej rola jest absolutnie fundamentalna dla trwałości zbrojenia i całego fundamentu. Minimalna wymagana grubość otuliny dla elementów fundamentowych wynosi zazwyczaj 5 cm. Dlaczego jest to tak ważne?
- Ochrona przed korozją: Beton jest środowiskiem zasadowym, które chroni stal przed rdzewieniem. Jeśli otulina jest zbyt cienka lub jej brakuje, wilgoć i agresywne substancje z gruntu (np. kwasy humusowe) mogą dotrzeć do stali, powodując jej korozję. Rdzewiejąca stal zwiększa swoją objętość, co prowadzi do pękania betonu i utraty nośności.
- Zapewnienie przyczepności: Odpowiednia otulina gwarantuje właściwą współpracę betonu ze stalą, co jest kluczowe dla przenoszenia obciążeń.
- Ochrona ogniowa: W przypadku pożaru, otulina chroni stal przed szybkim nagrzewaniem i utratą wytrzymałości.
Aby zapewnić wymaganą otulinę, stosuje się specjalne podkładki dystansowe betonowe lub plastikowe. Układa się je pod dolną warstwą zbrojenia oraz po bokach, aby szkielet znajdował się dokładnie w środku przekroju betonu, z zachowaniem minimalnej odległości od szalunku czy gruntu.
Krok 5: Stabilizacja zbrojenia w wykopie przed betonowaniem
Po zmontowaniu i sprawdzeniu szkieletu zbrojeniowego, należy go prawidłowo umieścić i ustabilizować w wykopie fundamentowym lub w szalunku. To niezwykle ważny etap, ponieważ nawet idealnie wykonane zbrojenie, jeśli zostanie źle ułożone, nie spełni swojej funkcji.
- Ułożenie na podkładkach: Szkielet musi spoczywać na wcześniej wspomnianych podkładkach dystansowych, aby zapewnić dolną otulinę. Nigdy nie wolno kłaść zbrojenia bezpośrednio na chudym betonie lub, co gorsza, na gruncie.
- Centrowanie: Zbrojenie powinno być wycentrowane w wykopie lub szalunku, tak aby otulina boczna była równomierna z każdej strony.
- Stabilizacja: Aby zbrojenie nie przesunęło się podczas wylewania betonu, należy je odpowiednio ustabilizować. Można to zrobić za pomocą dodatkowych prętów, klinów lub poprzez przymocowanie do szalunku, jeśli to możliwe. Pamiętajmy, że ciśnienie świeżego betonu jest znaczne i łatwo może zdeformować niestabilny szkielet.
Przed betonowaniem zawsze osobiście sprawdzam, czy wszystkie pręty są na swoim miejscu, czy otulina jest zachowana i czy szkielet jest stabilny. To ostatni moment na korekty!

Najczęstsze błędy przy zbrojeniu stóp fundamentowych: jak ich unikać?
Nawet doświadczonym wykonawcom zdarzają się błędy, zwłaszcza gdy praca odbywa się pod presją czasu. Jednak znajomość najczęstszych potknięć pozwala ich skutecznie unikać i zabezpieczyć naszą inwestycję. Jako Radosław Kowalski, widziałem ich już wiele, dlatego chcę Państwa przed nimi przestrzec.
Błąd #1: Brak lub niewłaściwa otulina cichy zabójca Twojego fundamentu
To chyba najczęściej popełniany i jednocześnie najbardziej zdradliwy błąd. Kładzenie siatki zbrojeniowej bezpośrednio na warstwie chudego betonu (tzw. chudziaku) lub, co gorsza, na gruncie, eliminuje dolną otulinę. W efekcie stal jest narażona na bezpośredni kontakt z wilgocią i agresywnymi składnikami gruntu. Z czasem prowadzi to do korozji prętów, co nie tylko osłabia samo zbrojenie, ale także powoduje rozsadzanie betonu. Pamiętajmy: minimum 5 cm otuliny z każdej strony! Używajmy do tego celu specjalnych podkładek dystansowych to niewielki koszt w porównaniu do potencjalnych problemów.
Błąd #2: Użycie niewłaściwego rodzaju lub średnicy stali
Kuszące może być zastosowanie tańszej stali o niższej klasie wytrzymałości lub mniejszej średnicy niż przewiduje projekt. To jednak prosta droga do katastrofy. Konstruktor, projektując zbrojenie, precyzyjnie oblicza, jaka stal i w jakiej ilości jest potrzebna do przeniesienia konkretnych obciążeń. Odstępstwa od tych założeń skutkują niewystarczającą wytrzymałością konstrukcji, co może objawić się pęknięciami lub nawet zawaleniem. Zawsze sprawdzajmy atesty stali i porównujmy je z projektem.
Błąd #3: Złe rozmieszczenie i zakotwienie prętów startowych pod słupy
Pręty startowe, czyli "wąsy", są kluczowe dla połączenia stopy fundamentowej z elementami konstrukcyjnymi powyżej (słupami, ścianami). Błędy w ich wykonaniu to:
- Złe rozmieszczenie: Pręty startowe muszą być ułożone dokładnie w miejscach, gdzie będą znajdować się słupy lub ściany. Niewłaściwe położenie utrudni lub uniemożliwi prawidłowe połączenie.
- Niewystarczająca długość zakotwienia: Jeśli pręty są zbyt krótkie, nie zapewnią odpowiedniego połączenia z betonem stopy, co osłabi całą konstrukcję.
- Brak odpowiedniej długości zakładu: Pręty startowe muszą wystawać ze stopy na tyle, aby można było do nich prawidłowo dowiązać zbrojenie słupa lub ściany, zachowując wymaganą długość zakładu.
Tego typu błędy mogą prowadzić do osłabienia połączeń między elementami konstrukcyjnymi, co jest niezwykle niebezpieczne.
Błąd #4: Niestabilne wiązanie szkieletu, które przesuwa się podczas betonowania
Wiązanie drutem wiązałkowym ma za zadanie utrzymać zbrojenie w stałej pozycji przed i w trakcie betonowania. Jeśli wiązania są luźne, zbyt rzadkie lub wykonane niedbale, szkielet zbrojeniowy może się zdeformować lub przesunąć pod wpływem ciężaru i ciśnienia wlewanego betonu. W efekcie pręty znajdą się w niewłaściwych miejscach, otulina zostanie naruszona, a całe zbrojenie straci swoją efektywność. Każde skrzyżowanie prętów powinno być solidnie związane. To prosta czynność, która ma ogromne znaczenie dla końcowego efektu.
Schematy zbrojenia stopy fundamentowej: typowe rozwiązania i zastosowanie
Chociaż zawsze podkreślam, że każdy projekt zbrojenia jest indywidualny i wynika z konkretnych obliczeń, istnieją pewne typowe rozwiązania i zasady, które warto znać. Różne typy stóp fundamentowych, w zależności od obciążeń i funkcji, będą miały nieco odmienne schematy zbrojenia.
Zbrojenie stopy pod słup żelbetowy na co zwrócić szczególną uwagę?
Stopa pod słup żelbetowy jest zazwyczaj kwadratowa lub prostokątna i ma za zadanie przenieść skoncentrowane obciążenie ze słupa na grunt. Kluczowe aspekty zbrojenia takiej stopy to:
- Krzyżujące się siatki prętów głównych: W dolnej części stopy zawsze znajdziemy dwie warstwy prętów głównych, ułożonych prostopadle do siebie, tworzące gęstą siatkę. To one przenoszą główne siły rozciągające.
- Strzemiona: Strzemiona tworzą "kosz" wokół prętów głównych, zapewniając ich stabilność i odporność na ścinanie.
- Pręty startowe słupa: Niezwykle ważne są pręty startowe, które muszą być odpowiednio zakotwione w stopie (często wygięte w kształt litery "L" lub "U") i wystawać na odpowiednią długość, aby umożliwić prawidłowe połączenie ze zbrojeniem słupa. Ich liczba i średnica muszą odpowiadać zbrojeniu słupa.
Precyzja w ułożeniu prętów startowych jest tu szczególnie istotna, ponieważ to one zapewniają ciągłość konstrukcyjną między słupem a fundamentem.
Stopa fundamentowa pod komin lub ścianę nośną kluczowe różnice
Zbrojenie stopy pod komin lub ścianę nośną różni się od zbrojenia pod słup przede wszystkim rozkładem obciążeń.
- Pod komin: Stopa pod komin jest zazwyczaj mniejsza, ale musi być zdolna przenieść znaczne obciążenie punktowe. Zbrojenie będzie podobne do stopy pod słup, ale dostosowane do wymiarów komina, z odpowiednio wyprowadzonymi prętami startowymi pod jego trzon.
- Pod ścianę nośną (ławy fundamentowe): W przypadku ścian nośnych, obciążenie jest rozłożone liniowo. Zamiast stóp punktowych, stosuje się zazwyczaj ławy fundamentowe. Zbrojenie ław to najczęściej dwa lub trzy pręty główne w dolnej części (wzdłuż ławy) oraz strzemiona obejmujące te pręty. Czasem, w zależności od wysokości ławy i obciążeń, stosuje się również górne pręty główne. Kluczowe jest tu zapewnienie ciągłości zbrojenia na całej długości ławy, z odpowiednimi zakładami na połączeniach prętów.
Zawsze należy pamiętać, że każdy z tych schematów jest jedynie ogólnym przykładem, a ostateczny kształt i parametry zbrojenia zawsze określa projektant.
Przeczytaj również: Zbrojenie posadzki w garażu: Klucz do trwałej podłogi bez pęknięć
Czy zawsze potrzebne jest zbrojenie? Kiedy konstruktor może z niego zrezygnować?
W większości przypadków odpowiedź brzmi: tak, zbrojenie jest niezbędne. Beton doskonale przenosi siły ściskające, ale jest bardzo słaby na rozciąganie. To właśnie stal zbrojeniowa przejmuje te siły, zapewniając integralność i wytrzymałość konstrukcji. Jednakże, w bardzo rzadkich i specyficznych sytuacjach, konstruktor może podjąć decyzję o rezygnacji ze zbrojenia stopy fundamentowej. Może to mieć miejsce w przypadku:
- Bardzo lekkich konstrukcji: Na przykład niewielkich budynków gospodarczych, altan, gdzie obciążenia są minimalne.
- Wyjątkowo korzystnych warunków gruntowych: Na gruntach o bardzo wysokiej nośności i jednorodności, gdzie ryzyko nierównomiernego osiadania jest znikome.
- Specyficznych rozwiązań konstrukcyjnych: Gdzie inne elementy konstrukcji lub rodzaj fundamentu (np. płyta fundamentowa o odpowiedniej grubości) przejmują wszystkie obciążenia.
Decyzja o rezygnacji ze zbrojenia nigdy nie jest podejmowana "na oko". Zawsze musi być poparta szczegółowymi obliczeniami statycznymi i ekspertyzą uprawnionego konstruktora. Jako Radosław Kowalski, zawsze zalecam ostrożność i w większości przypadków rekomenduję wykonanie zbrojenia zgodnie z projektem to inwestycja w spokój i bezpieczeństwo na lata.





