Ten artykuł to kompleksowy przewodnik po interpretacji rysunków zbrojenia stropów żelbetowych. Dowiesz się, jak prawidłowo odczytywać kluczowe elementy projektu, rozszyfrowywać oznaczenia i unikać najczęstszych błędów wykonawczych, co jest fundamentem bezpieczeństwa i trwałości każdej konstrukcji.
Zrozumienie rysunku zbrojenia stropu klucz do bezpiecznej i trwałej konstrukcji
- Rysunek zbrojenia składa się z rzutów, przekrojów, szczegółowych opisów prętów oraz tabeli stali zbrojeniowej.
- Kluczowe oznaczenia to średnica pręta (∅), klasa stali (np. B500SP), rozstaw prętów oraz grubość otuliny betonowej.
- Prawidłowa interpretacja wymaga analizy rzutu (zbrojenie dolne i górne) oraz przekrojów (układ prętów w pionie).
- Najczęstsze błędy to niewłaściwa stal, zły rozstaw, brak otuliny lub pominięcie zbrojenia dodatkowego.
- Rysunki różnią się w zależności od typu stropu: monolitycznego, gęstożebrowego (np. Teriva) czy filigranowego.
Rola rysunku technicznego w procesie budowy
Rysunki zbrojenia to absolutna podstawa w każdym projekcie budowlanym. Dla mnie, jako osoby z doświadczeniem w branży, są one niczym instrukcja obsługi, która gwarantuje, że konstrukcja będzie bezpieczna, trwała i zgodna z zamierzeniami projektanta. Nie chodzi tylko o estetykę, ale przede wszystkim o integralność strukturalną budynku. Prawidłowo wykonane zbrojenie, oparte na szczegółowym i precyzyjnym rysunku, jest fundamentem, na którym opiera się cała konstrukcja. Bez nich realizacja byłaby chaotyczna i obarczona ogromnym ryzykiem, dlatego zawsze podkreślam ich znaczenie jako podstawy do prawidłowej realizacji, opartej na Polskich Normach i Eurokodzie 2.
Konsekwencje błędnej interpretacji projektu: Czego unikać?
Błędna interpretacja rysunków zbrojenia to prosta droga do poważnych problemów na budowie. Z mojego doświadczenia wiem, że konsekwencje mogą być naprawdę dotkliwe:
- Ryzyko awarii konstrukcyjnej: To najpoważniejszy skutek. Zastosowanie niewłaściwej stali, nieprawidłowy rozstaw prętów czy brak otuliny betonowej mogą drastycznie obniżyć nośność stropu, prowadząc nawet do jego zawalenia.
- Koszty poprawek i opóźnienia: Wykrycie błędu po zabetonowaniu to zawsze ogromny problem. Konieczność kucia betonu, demontażu i ponownego zbrojenia generuje gigantyczne koszty i znacząco wydłuża czas realizacji projektu.
- Problemy prawne i odpowiedzialność: Jako wykonawca lub inwestor, ponosisz odpowiedzialność za bezpieczeństwo konstrukcji. Błędy wynikające z niewłaściwej interpretacji projektu mogą skutkować poważnymi konsekwencjami prawnymi, w tym roszczeniami odszkodowawczymi.
- Obniżona trwałość konstrukcji: Nawet jeśli strop nie ulegnie natychmiastowej awarii, niewłaściwe zbrojenie, zwłaszcza brak odpowiedniej otuliny, przyspieszy korozję stali, skracając żywotność całej konstrukcji.
- Trudności w odbiorze technicznym: Inspektor nadzoru technicznego bezwzględnie sprawdzi zgodność wykonania z projektem. Niezgodności w zbrojeniu to niemal pewność, że budynek nie zostanie odebrany, dopóki wszystkie usterki nie zostaną usunięte.

Anatomia rysunku zbrojenia stropu: Poznaj kluczowe elementy projektu
Rzut stropu: Twoja mapa zbrojenia dolnego i górnego
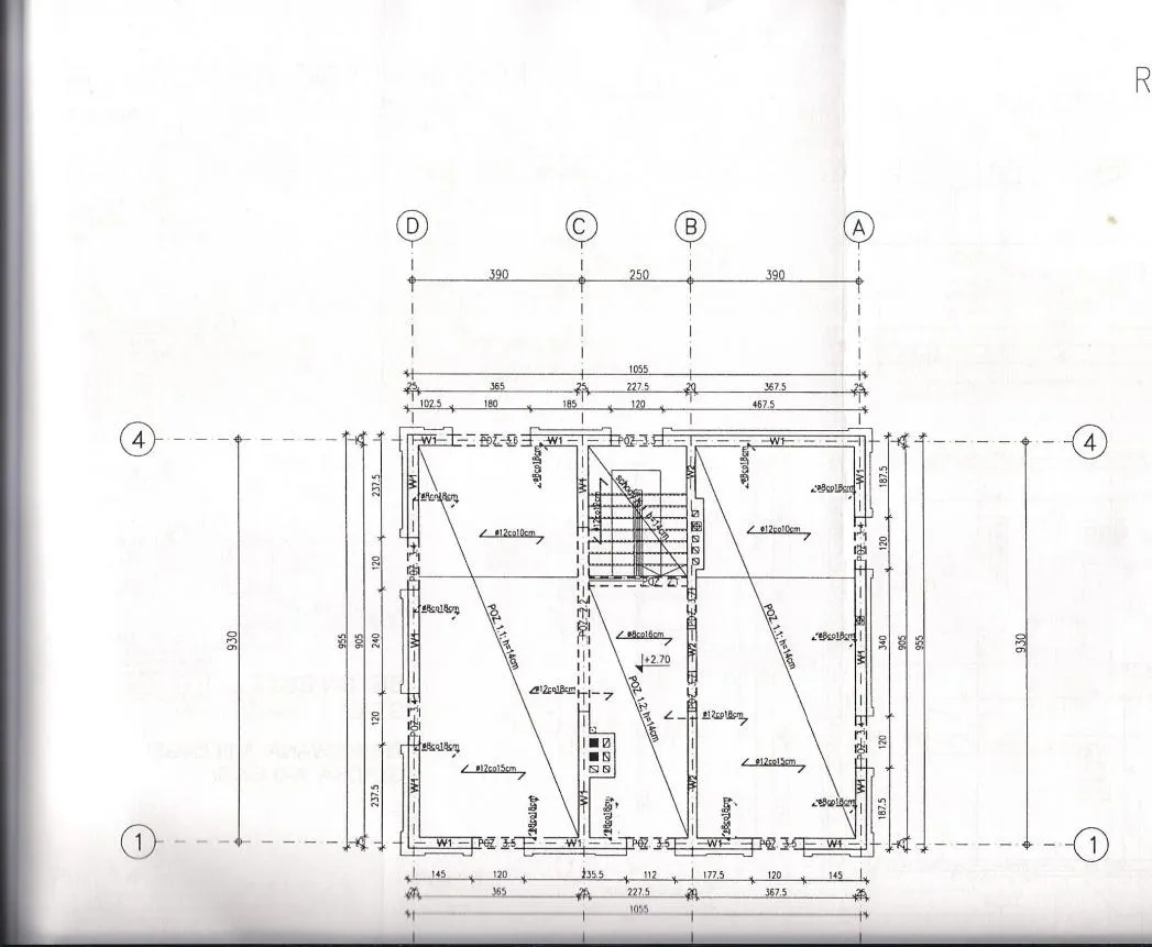
Rzut stropu to nic innego jak widok z góry, który stanowi podstawową "mapę" całego zbrojenia. To tutaj widzimy, jak rozmieszczone są pręty w płaszczyźnie poziomej. Na rzucie odróżniamy zazwyczaj zbrojenie dolne, które przenosi momenty zginające w środku rozpiętości, od zbrojenia górnego, które jest kluczowe nad podporami. Zbrojenie dolne często przedstawia się liniami ciągłymi, natomiast górne liniami przerywanymi. Kluczowe jest również rozróżnienie prętów nośnych (głównych), które są zazwyczaj grubsze i gęściej rozmieszczone, od prętów rozdzielczych, których zadaniem jest utrzymanie prawidłowego rozstawu prętów nośnych i rozłożenie obciążeń.
Przekroje: Jak zajrzeć w głąb konstrukcji i zrozumieć układ warstw?
O ile rzut stropu pokazuje nam układ poziomy, o tyle przekroje pozwalają nam zajrzeć w głąb konstrukcji i zrozumieć jej pionowy układ. To właśnie na przekrojach widzimy, jak ułożone są poszczególne warstwy zbrojenia, jaka jest grubość płyty stropowej oraz co niezwykle ważne jaką grubość ma otulina betonowa, czyli warstwa betonu chroniąca pręty przed korozją i ogniem. Przekroje są kluczowe do weryfikacji prawidłowego ułożenia prętów w pionie, co ma bezpośredni wpływ na nośność i trwałość stropu. Bez nich nie bylibyśmy w stanie ocenić, czy zbrojenie jest wykonane zgodnie z założeniami konstrukcyjnymi.
Tabela stali zbrojeniowej: Twoja „lista zakupów” i kontroli materiału
Tabela stali zbrojeniowej to dokument, który traktuję jak moją "listę zakupów" i jednocześnie narzędzie do kontroli materiału. Znajdziemy w niej wszystkie niezbędne informacje o stali, która ma zostać użyta w danym stropie. Są to między innymi: masa całkowita stali, gatunek stali (np. B500SP, B500A), średnice poszczególnych prętów oraz ich długości i kształty. Ta tabela jest nieoceniona podczas zamawiania materiału, a także w trakcie odbioru dostaw na budowie. Dzięki niej mogę szybko zweryfikować, czy dostarczony materiał jest zgodny z projektem, co jest kluczowe dla zapewnienia odpowiedniej jakości i bezpieczeństwa konstrukcji.
Słownik budowlany: Rozszyfruj oznaczenia i symbole na rysunku zbrojenia
Średnica, klasa i gatunek stali (np. ∅12, B500SP): Co mówią te skróty?
Zrozumienie oznaczeń stali zbrojeniowej to podstawa. Bez tego ani rusz! Oto, co oznaczają kluczowe skróty:
- ∅ (fi) lub D: Ten symbol oznacza średnicę pręta. Na przykład, ∅12 to pręt o średnicy 12 milimetrów. Jest to informacja krytyczna, ponieważ średnica pręta bezpośrednio wpływa na jego nośność.
- Klasa stali (np. A-IIIN, B500SP): Klasa stali określa jej właściwości mechaniczne, przede wszystkim wytrzymałość na rozciąganie i plastyczność. W Polsce najczęściej spotykamy się ze stalą klasy A-IIIN (obecnie rzadziej, starsze projekty) lub nowszymi oznaczeniami zgodnymi z Eurokodem 2, takimi jak B500SP (stal spawalna, o podwyższonej ciągliwości) czy B500A. Zawsze upewniam się, że na budowę trafia stal o dokładnie takiej klasie, jaka została przewidziana w projekcie, ponieważ zastosowanie niewłaściwej klasy może mieć katastrofalne skutki dla wytrzymałości konstrukcji.
- Gatunek stali: Gatunek stali to bardziej szczegółowe określenie jej składu chemicznego i właściwości. W Polsce dominują gatunki B500SP i B500A. Zgodność gatunku stali z projektem weryfikuję zawsze na podstawie certyfikatów dostarczonych przez producenta.
Pamiętajmy, że wszystkie te oznaczenia muszą być zgodne z Polskimi Normami i Eurokodem 2. Ich prawidłowa weryfikacja na budowie to obowiązek każdego odpowiedzialnego wykonawcy.
Rozstaw, otulina i haki: Jak interpretować wymiary i kształty prętów?
Poza średnicą i klasą stali, równie ważne są inne parametry, które decydują o prawidłowym funkcjonowaniu zbrojenia. Rozstaw prętów, czyli odległość między osiami sąsiednich prętów, jest kluczowy dla równomiernego rozłożenia obciążeń i efektywnego przenoszenia naprężeń. Typowe wartości to np. co 15 cm lub co 20 cm. Zbyt duży rozstaw może prowadzić do pęknięć betonu, a zbyt mały utrudnia prawidłowe zagęszczenie mieszanki betonowej. Grubość otuliny betonowej to warstwa betonu, która chroni stal przed korozją i wysoką temperaturą w przypadku pożaru. Jest to jeden z najważniejszych parametrów wpływających na trwałość konstrukcji. Zazwyczaj wynosi ona od 2,5 cm do 5 cm, w zależności od warunków ekspozycji. Należy ją bezwzględnie kontrolować za pomocą specjalnych podkładek dystansowych. Kształt i długość haków na końcach prętów zbrojeniowych są niezbędne do prawidłowego zakotwienia stali w betonie, co zapewnia skuteczne przenoszenie sił. Haki muszą być wykonane precyzyjnie, zgodnie z rysunkiem, aby zbrojenie mogło pracować jako spójna całość.
Linie, strzałki i opisy: Przewodnik po języku graficznym konstruktora
Rysunek zbrojenia to swego rodzaju język graficzny, którym konstruktor komunikuje się z wykonawcą. Różne rodzaje linii (ciągłe, przerywane, kropkowane) oznaczają różne elementy zbrojenia np. zbrojenie dolne, górne, czy też pręty niewidoczne w danym rzucie. Strzałki wskazują kierunek działania sił, rozpiętość elementów lub zakres występowania danego zbrojenia. Natomiast opisy tekstowe to klucz do zrozumienia szczegółów zawierają informacje o średnicy, klasie stali, rozstawie prętów (np. "4∅12 co 200"), a także o numerach pozycji prętów, które odsyłają nas do tabeli stali zbrojeniowej. Zawsze radzę dokładnie analizować wszystkie te elementy, ponieważ każdy z nich niesie ze sobą istotną informację, niezbędną do prawidłowej realizacji projektu.
Praktyczny poradnik: Czytanie rysunku zbrojenia krok po kroku
Jako praktyk, zawsze podchodzę do rysunku zbrojenia w ustrukturyzowany sposób. Oto moja sprawdzona metoda:
-
Krok 1: Analiza rzutu identyfikacja zbrojenia głównego i rozdzielczego
Zaczynam od ogólnego rzutu stropu. Moim celem jest szybkie zorientowanie się w układzie zbrojenia. Szukam, gdzie są pręty główne (nośne) te, które przenoszą największe obciążenia i są zazwyczaj grubsze oraz gęściej rozmieszczone. Następnie identyfikuję zbrojenie rozdzielcze, które jest prostopadłe do głównego i ma za zadanie rozłożyć obciążenia oraz utrzymać pręty główne w odpowiednim rozstawie. Zwracam uwagę na kierunek ich ułożenia i czytelność oznaczeń.
-
Krok 2: Weryfikacja przekrojów sprawdzanie grubości płyty i otuliny
Po wstępnej analizie rzutu przechodzę do przekrojów. To tutaj mogę "zajrzeć" w głąb stropu. Sprawdzam przede wszystkim grubość płyty stropowej czy jest zgodna z projektem. Następnie, co jest niezwykle ważne, weryfikuję grubość otuliny betonowej dla zbrojenia dolnego i górnego. Pamiętam, że prawidłowa otulina to gwarancja trwałości i ochrony stali przed korozją. Jeśli przekroje są niejasne, zawsze dopytuję projektanta.
-
Krok 3: Sprawdzenie detali zakotwienie prętów w wieńcach i podciągach
Ostatni, ale nie mniej ważny krok, to analiza detali. Skupiam się na miejscach krytycznych, takich jak zakotwienie prętów w wieńcach i podciągach. Niewłaściwe zakotwienie może prowadzić do utraty nośności w tych newralgicznych punktach. Sprawdzam długości zakotwienia, kształt haków i wszelkie dodatkowe wzmocnienia. To właśnie w tych miejscach często pojawiają się błędy, które mogą mieć poważne konsekwencje dla bezpieczeństwa całej konstrukcji.

Różne stropy, różne rysunki: Specyfika popularnych rozwiązań
W swojej praktyce spotkałem się z wieloma typami stropów, a każdy z nich ma swoją specyfikę, która znajduje odzwierciedlenie w rysunkach zbrojenia.
Specyfika rysunku dla stropu monolitycznego żelbetowego
Stropy monolityczne żelbetowe to konstrukcje wylewane na budowie, które charakteryzują się największą złożonością rysunków zbrojenia. Wynika to z faktu, że zbrojenie w nich jest zazwyczaj krzyżowe tworzy siatki prętów lub jest układane jako pojedyncze pręty w dwóch kierunkach. Rysunki dla tych stropów zawierają zazwyczaj wiele rzutów (np. zbrojenie dolne w jednym kierunku, dolne w drugim, górne nad podporami) oraz liczne przekroje, które są niezbędne do precyzyjnego określenia ułożenia prętów w przestrzeni. Wymagają one bardzo dokładnej interpretacji, aby zapewnić prawidłowe przenoszenie obciążeń.
Jak czytać projekt zbrojenia stropu gęstożebrowego (np. Teriva)?
Stropy gęstożebrowe, takie jak popularna Teriva, mają nieco inną specyfikę. Ich konstrukcja opiera się na prefabrykowanych belkach (żebrowych) i pustakach, a zbrojenie betonowane na budowie dotyczy głównie wieńców obwodowych, żeber rozdzielczych oraz ewentualnego zbrojenia dodatkowego w płycie nad pustakami. Na rysunkach dla stropów gęstożebrowych kluczowe jest zwrócenie uwagi na zbrojenie wzdłuż belek, zbrojenie poprzeczne w żebrach rozdzielczych oraz dokładne schematy zbrojenia wieńców, które łączą strop ze ścianami. Zazwyczaj są to rysunki mniej skomplikowane niż dla stropów monolitycznych, ale wymagają precyzyjnego wykonania połączeń.
Zbrojenie w stropach typu filigran: Co pokazuje dokumentacja?
Stropy typu filigran to połączenie prefabrykacji z betonowaniem na budowie. Dokumentacja dla nich często przedstawia zbrojenie prefabrykowanych płyt (które są dostarczane na budowę z już wbudowanym zbrojeniem dolnym) oraz zbrojenie uzupełniające, które jest dodawane na placu budowy. To zbrojenie uzupełniające zazwyczaj obejmuje zbrojenie górne nad podporami, zbrojenie w wieńcach oraz ewentualne zbrojenie dodatkowe w miejscach koncentracji naprężeń, np. przy otworach. Rysunki te często są uzupełniane o szczegółowe instrukcje montażu i betonowania, co jest kluczowe dla prawidłowego wykonania.
Unikaj błędów: Najczęstsze pułapki wykonawcze w zbrojeniu stropów
Nawet najlepszy projekt nie uchroni nas przed błędami, jeśli wykonanie nie będzie precyzyjne. Z mojego doświadczenia wiem, że pewne pułapki pojawiają się na budowach nagminnie.
Pomyłki w średnicy i rozstawie prętów: Jak je wychwycić przed betonowaniem?
Jednym z najczęstszych błędów jest zastosowanie prętów o niewłaściwej średnicy lub ich nieprawidłowy rozstaw. Zamiast ∅12, pojawia się ∅10, albo pręty są rozłożone co 25 cm zamiast co 15 cm. Jak to wychwycić? Przede wszystkim, zawsze porównuję stan rzeczywisty z rysunkiem. Zawsze mam przy sobie miarkę i sprawdzam rozstaw prętów w kilku punktach stropu. Średnicę prętów weryfikuję za pomocą suwmiarki lub po prostu na podstawie oznaczeń na prętach, a także certyfikatów dostawy. Te proste czynności, wykonane przed betonowaniem, mogą zaoszczędzić ogromnych problemów i kosztów.
Problem niewłaściwej otuliny: Dlaczego jest kluczowa dla trwałości?
Niewłaściwa otulina betonowa to cichy zabójca konstrukcji. Jeśli jest zbyt mała, zbrojenie jest narażone na korozję, co prowadzi do pękania betonu i utraty nośności. Jeśli jest zbyt duża, zbrojenie może nie pracować efektywnie. Prawidłowa grubość otuliny jest kluczowa dla trwałości konstrukcji i ochrony stali. Na rysunku zawsze szukam informacji o wymaganej grubości otuliny. Na budowie natomiast kontroluję ją za pomocą podkładek dystansowych (tzw. "grzybków" lub "krążków"), które zapewniają odpowiedni dystans między zbrojeniem a deskowaniem. To absolutna podstawa, której nie można zaniedbać.
Przeczytaj również: Jakie pręty na zbrojenie schodów? Wybierz dobrze i bezpiecznie!
Brakujące zbrojenie dodatkowe przy otworach i krawędziach: Gdzie go szukać na planie?
Często spotykam się z problemem pominięcia zbrojenia dodatkowego, zwłaszcza przy otworach w stropie (np. na kominy, schody) oraz na krawędziach. Te miejsca są szczególnie narażone na koncentrację naprężeń, a brak odpowiedniego wzmocnienia może prowadzić do pęknięć. Informacje o zbrojeniu dodatkowym zazwyczaj znajdują się na rzucie stropu, często w formie szczegółowych detali lub dodatkowych opisów. Zawsze poświęcam tym miejscom szczególną uwagę, ponieważ są one kluczowe dla lokalnej wytrzymałości i sztywności stropu. Ich pominięcie to proszenie się o kłopoty.
Podsumowanie: Twoja checklista do weryfikacji zbrojenia na budowie
Aby ułatwić Ci pracę na budowie, przygotowałem krótką checklistę, która pomoże Ci w weryfikacji zbrojenia stropu:
- Sprawdź zgodność średnic i klas stali: Upewnij się, że użyte pręty mają dokładnie taką średnicę i klasę, jaką przewiduje projekt. Weryfikuj to na podstawie oznaczeń i certyfikatów.
- Kontroluj rozstaw prętów: Za pomocą miarki sprawdź, czy odległości między prętami są zgodne z rysunkiem.
- Weryfikuj grubość otuliny betonowej: Użyj podkładek dystansowych i upewnij się, że otulina ma wymaganą grubość zarówno dla zbrojenia dolnego, jak i górnego.
- Zwróć uwagę na zakotwienie prętów: Sprawdź długości zakotwienia i kształt haków w wieńcach i podciągach.
- Nie zapomnij o zbrojeniu dodatkowym: Upewnij się, że wszystkie wzmocnienia przy otworach i na krawędziach stropu są prawidłowo wykonane.
- Porównaj rzut z przekrojami: Zawsze analizuj te dwa elementy razem, aby mieć pełny obraz układu zbrojenia w przestrzeni.
- Zapoznaj się z tabelą stali zbrojeniowej: Przed rozpoczęciem prac upewnij się, że masz świadomość, jaka stal i w jakiej ilości jest potrzebna.





